【33次モデルハウス】コンパクトハウス fits me
fits me (フィッツミー) = わたしたちにぴったりな住宅
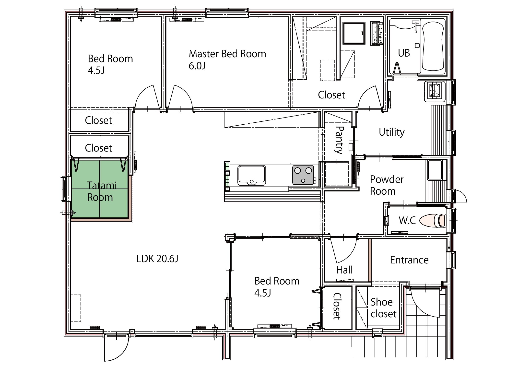
暮らしが整い、家族がつながる平屋
暮らしをもっと快適に、そして家族時間をより心地よく。
ストレスフリーな回遊動線とたっぷり収納を組み合わせ、
家の中が自然と片付く間取りに。
さらに、てきぱき動ける家事動線で
日々の負担を減らし、家族との時間も自分の時間も
もっと楽しめるお家となりました。
続き間とつなげてゆったり過ごせるLDK空間や
畳の上でのんびり過ごせる小上がりも見どころ!
==========================
📣家づくりお悩み診断実施中
・月々の支払いは、無理をしたくない・・・
・ローンが組めるか心配・・・
・家を買うと、どんな税金がかかるの?
・平屋か2階建か・・・メリット・デメリットは?
・住宅性能数値の意味や重要性がよくわからない・・・
==========================
【土日祝公開中】平屋モデルハウス「暮らしが整い、家族がつながる平屋」| 帯広市 | 十勝帯広の新築住宅・平屋は工務店 アイ建築工房
▲見学予約はこちらから
※平日でもご予約を頂ければご案内いたします
| 手数料 | なし |
|---|---|
| 諸費用 | 所有権移転費用、印紙代 |
詳細データ
| 土地面積 | 235.72㎡ 71.30坪 |
|---|---|
| 延べ床面積 | 97.51㎡(29.43坪) |
| 向き | 南側 道路幅員8.00m/接道接面13.570m 北側 道路幅員12.00m/接道接面13.570m |
| 既存建造物 | - |
| 注意事項 | |
| 建築条件 | 木造 地上1階(2×4工法)確認申請番号:第R7確認建築帯広建開00148号 |
| 売主 | 売主 |
| 坪単価 | - |
| 有効期限 | - |
| 地目 |
宅地 | 建ぺい率 |
40% |
|---|---|---|---|
| 用途地域 | 第一種低層住居専用地域 (大空地区地区計画 ) ※集中プロパン地区 |
容積率 | 60% |
| 交通 | 十勝バス「大空2丁目」バス停 徒歩3分 |
|---|---|
| 最寄の施設 | 【近隣商業施設】 ・セイコーマート帯広大空店 0.1km 徒歩3分 ・ダイイチみなみ野店 2.3㎞ 徒歩7分 ・ツルハドラッグ帯広南の森東店 2.4㎞ 徒歩31分 ・帯広光南病院 1.1㎞ 徒歩15分 帯広市立帯広義務教育学校 0.8㎞ 徒歩12分 【所在地MAP】https://maps.app.goo.gl/dHNhNEb7CWBgTKZk7 |
| 備考 | \モデルハウスオーナー様募集中/ ・・・購入サポート制度・・・ お引渡し後、6ヶ月・12ヶ月・24ヶ月で無償で定期点検を実施します。 【物件設備】 照明器具/エアコン/エコジョーズ(セントラル暖房)/24時間換気システム/システムキッチン・IHヒーター/モニタ付きインターホン ■リビングには床暖房を設置。冬も足もとからあったか♪ ■IHクッキングヒーター採用のシステムキッチン ■その他:エコジョーズ・浴室乾燥機・24時間換気・エアコン・モニター付きインターホン等 |
Property inquiry物件お問合せ
【33次モデルハウス】コンパクトハウス fits me
※週末は対応が遅れる場合がありますので、お急ぎの場合は下記フリーダイヤルまでお電話にてご連絡お願いいたします。
フリーダイヤル
0120-375-396
メールが届かない場合について
- お客様が迷惑メール対策等でドメイン指定受信を設定されている場合、メールが正しく届かないことがございます。「@i-kenchikukoubou.jp」を受信できるよう設定してください。
- フリーメール(YahooやGmail等)をご利用の場合、迷惑メールに入ってしまうことがありますので、一度ご確認いただきますようお願いいたします。
















